Whole Foods Los Gatos

Los Gatos, California

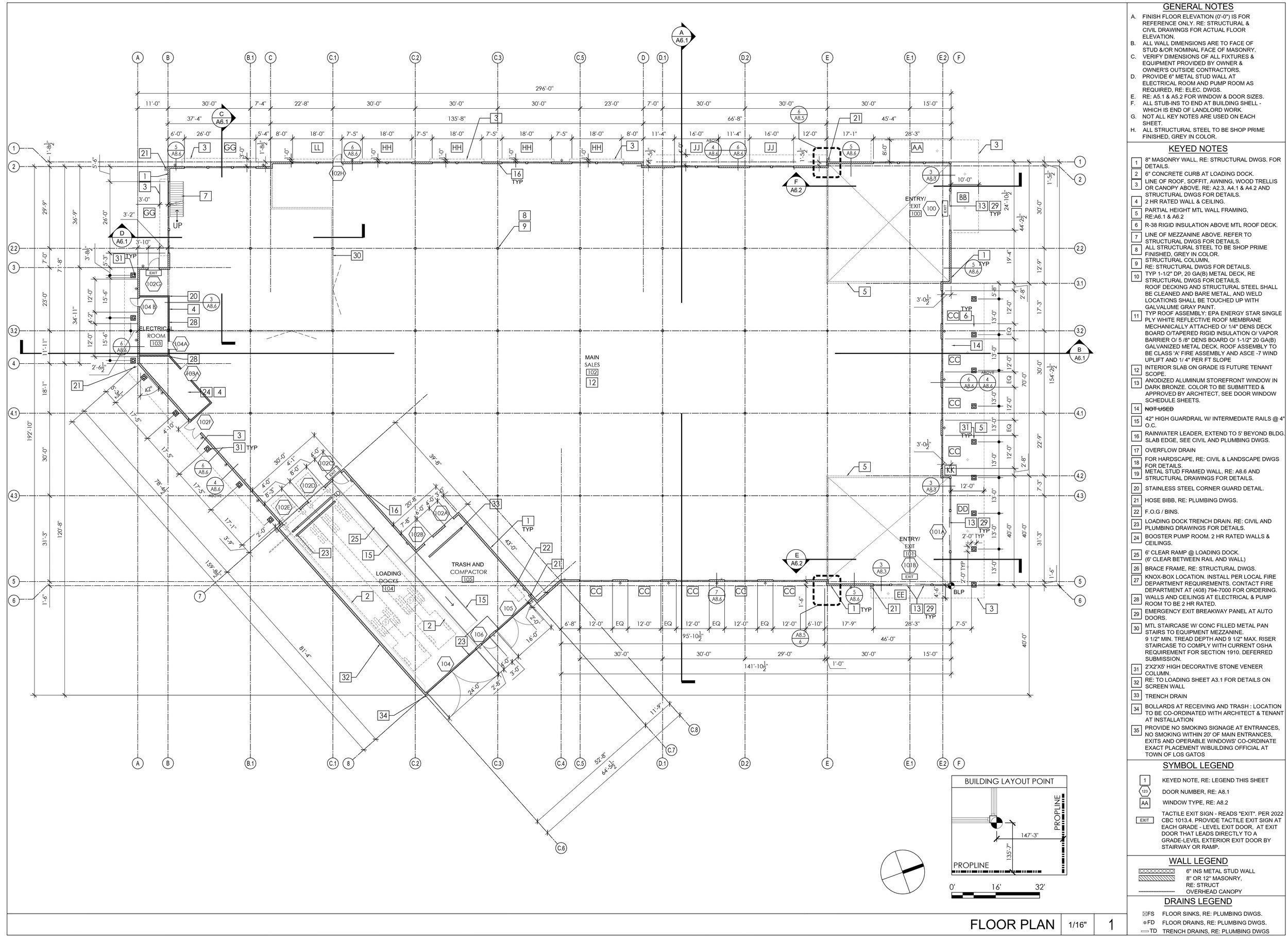
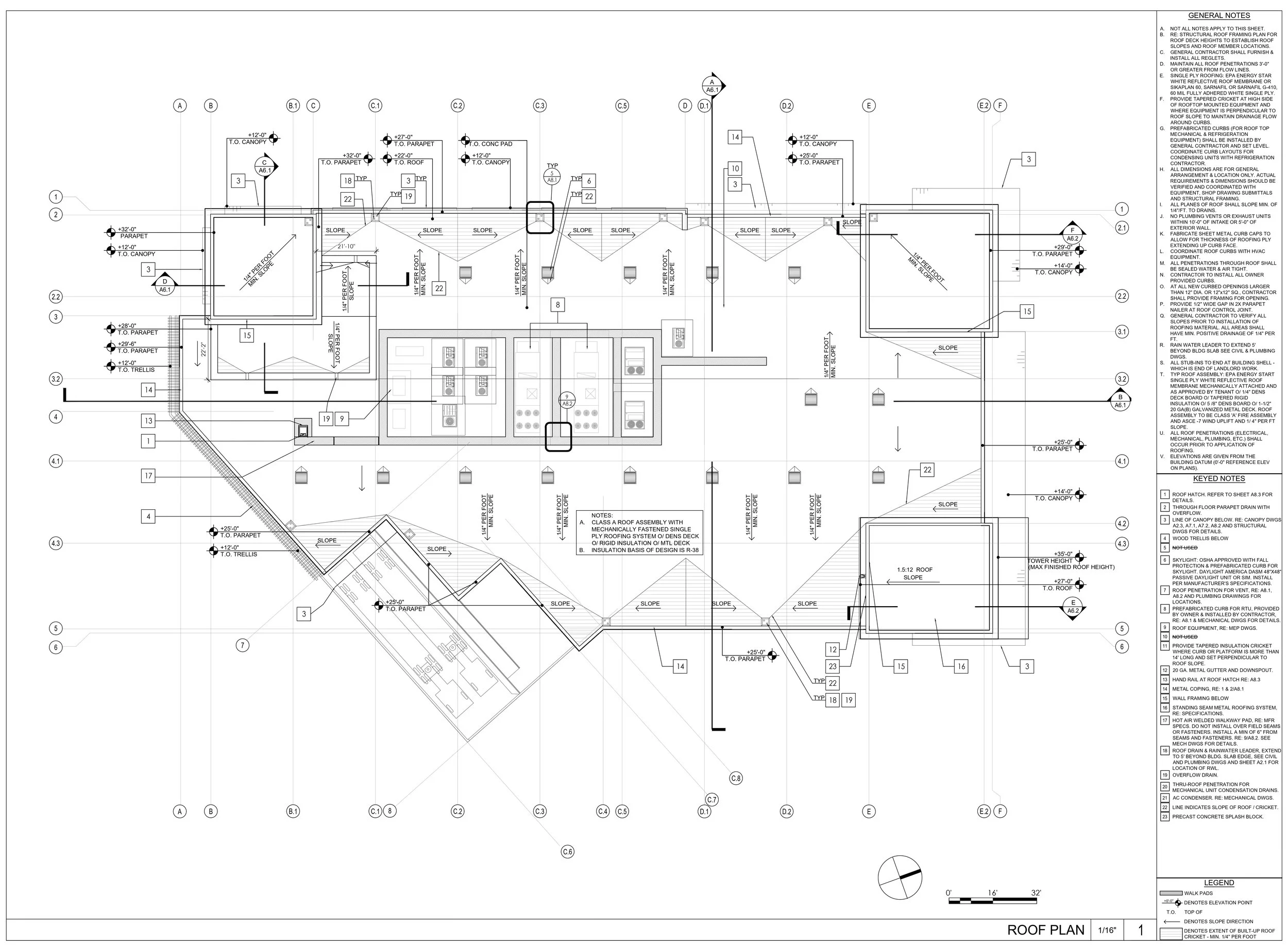
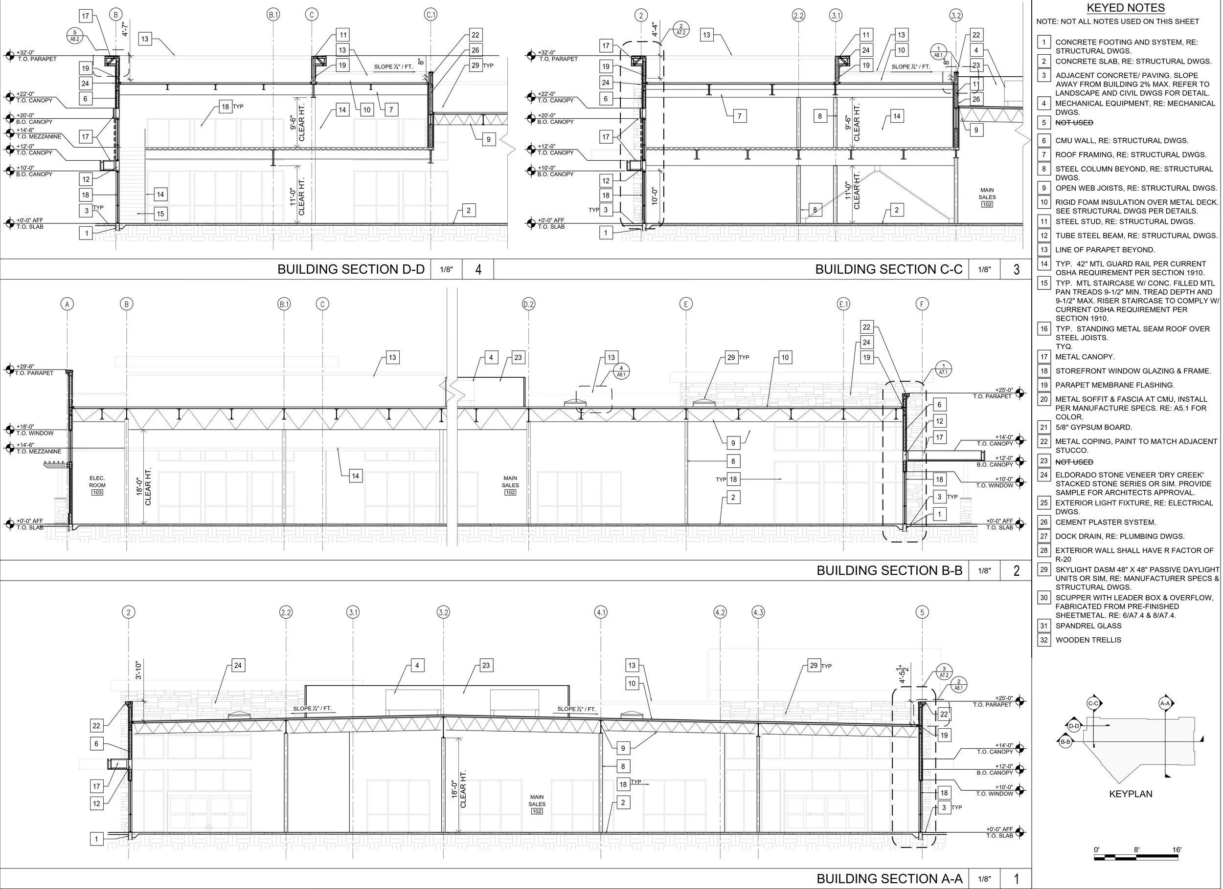
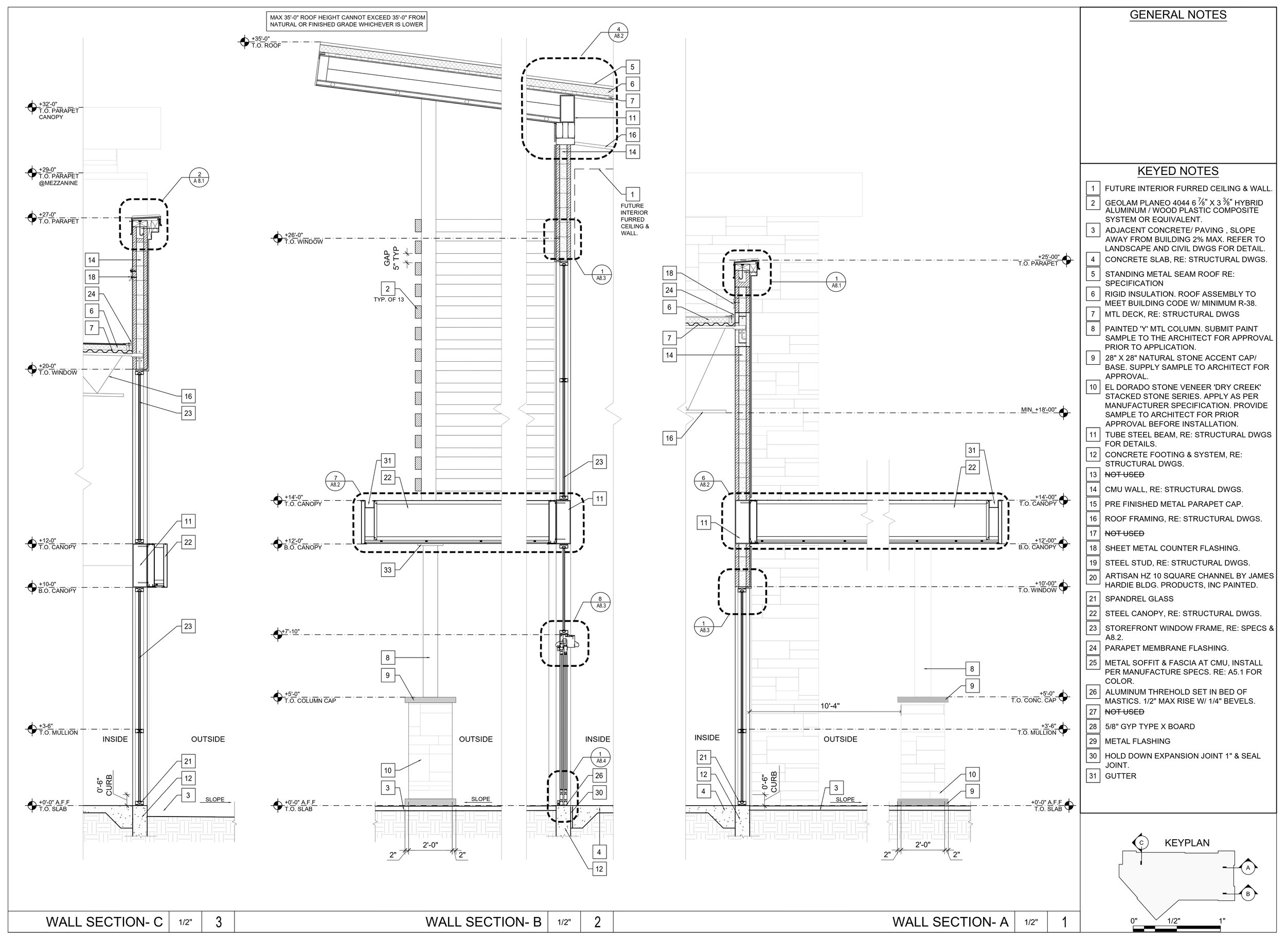
The 15650 Los Gatos boulevard project has a site area of 2.793 acres and is located within the CH- restricted commercial highway zoning in the town of Los Gatos, California. 40,000 SF of built up.The project consists of constructing a new commercial building and surface parking lot. The project aims to create a unique building that embodies the qualities which are desirable for the boulevard. It contains neighborhood shopping uses while maintaining a unique scale and pedestrian friendliness that is highly desirable to town residents. The new building is located on the boulevard to encourage pedestrian connectivity and vibrancy. The building design is a series of smaller scale architectural features and details to support the boulevard guidelines and town of Los Gatos design goals.

For Sandhill Property Company

Previous
Previous

Sunnyvale Residence

Next
Next

747 W Dana St