747 W Dana St

Downtown Mountain View, California

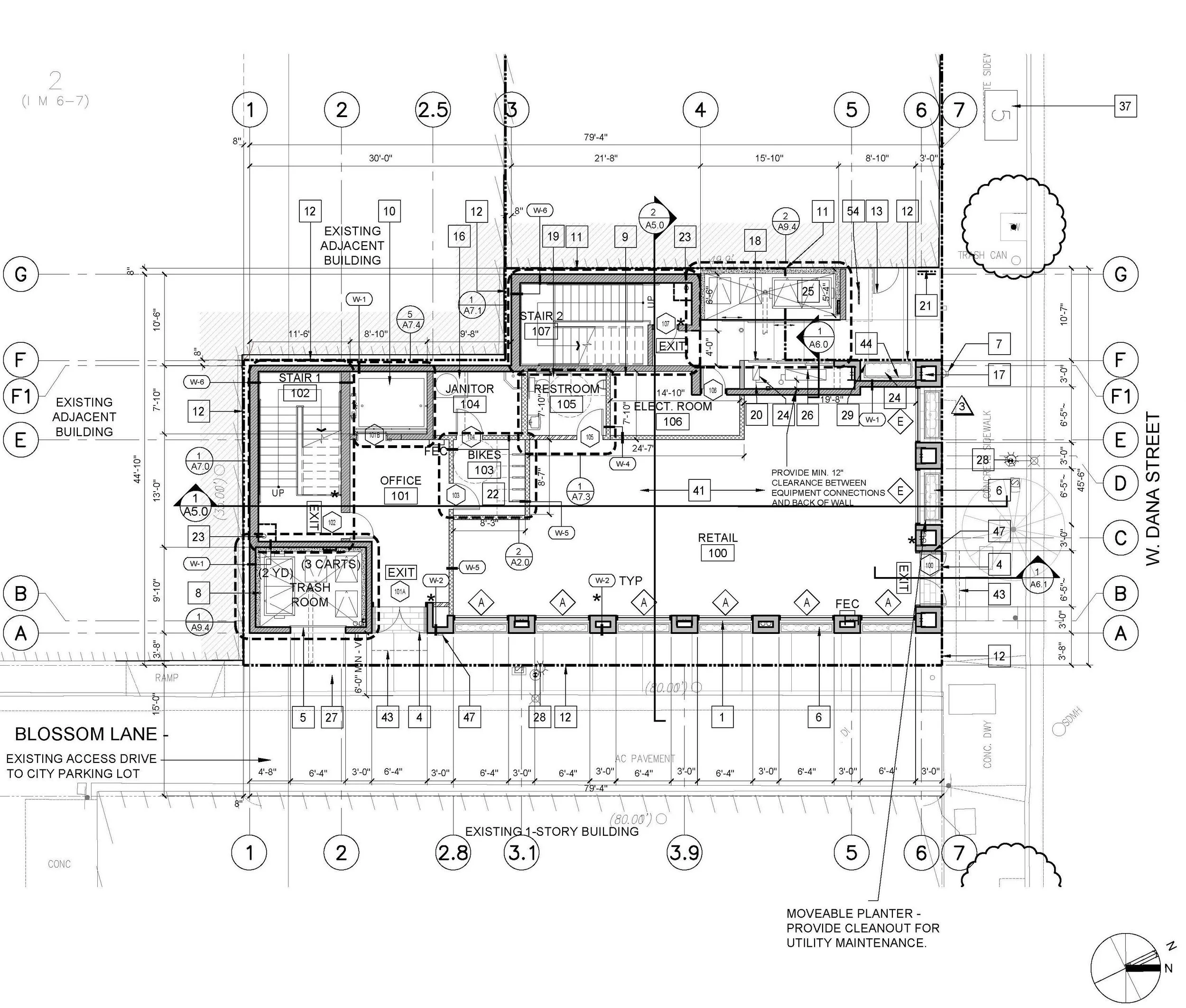
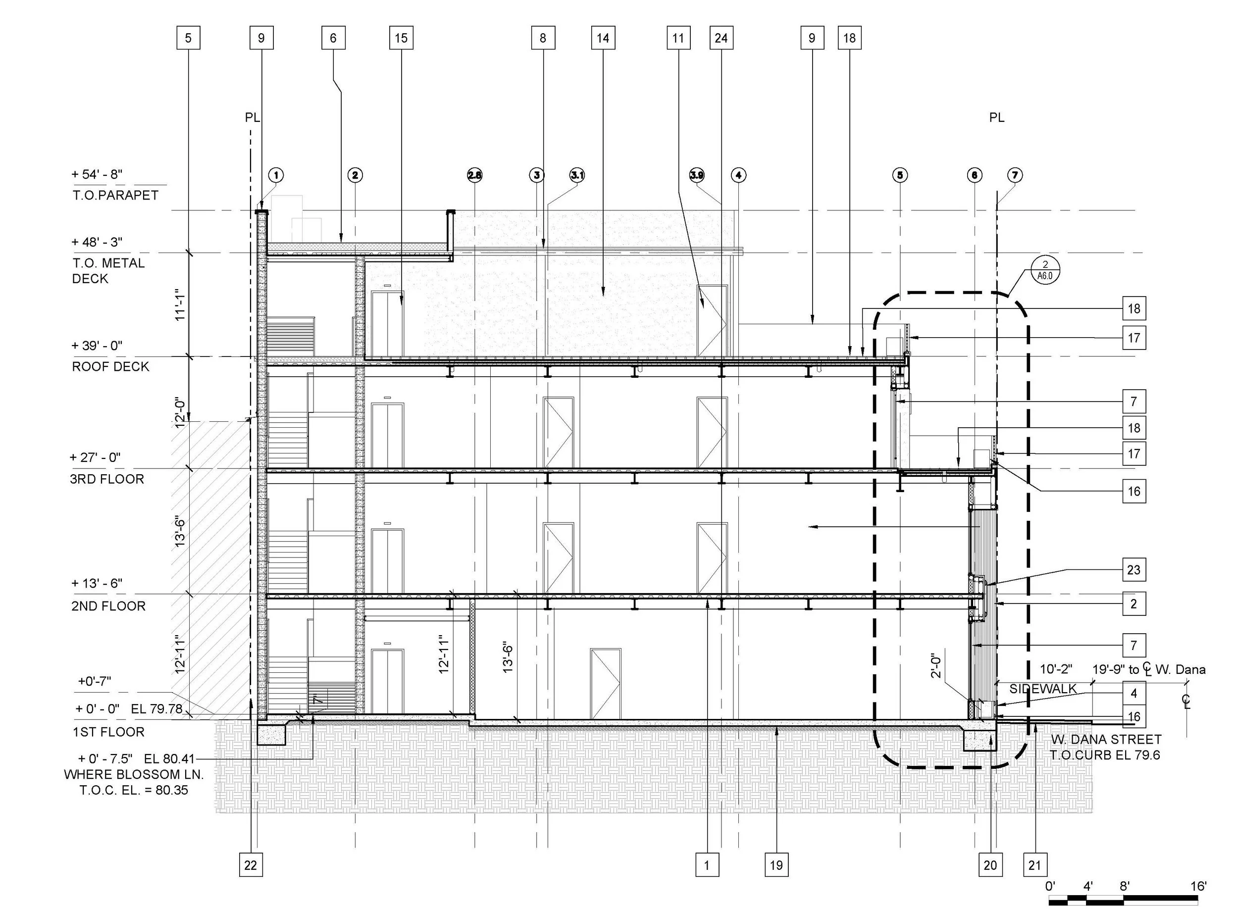
The development at Dana Street represents a high-density, mixed-use infill project within the P-19 (Downtown) Precise Plan. By utilizing a Lot Line Adjustment on a compact 0.07-acre site, the project replaces an existing 2,300-square-foot retail building with a more efficient four-story commercial structure. The program allocates 7,000 square feet for office use and 1,600 square feet for ground-floor retail, intentionally omitting on-site parking to prioritize pedestrian engagement and transit-oriented density.

For For SHP Castro LLC

Key Design Features

  • Public-Facing Orientation: Due to the inaccessibility of the south and west sides, the architectural expression is concentrated on the North and East facades to capture the attention of the downtown public.

  • Volumetric Setbacks: The design incorporates significant visual setbacks at the upper levels to create a tiered profile that reduces the perceived massing from the street.

  • Interactive Terraces: A roof deck at +39'-0" and mid-level terraces provide outdoor breakout spaces that foster a visual connection between office tenants and the street life below.

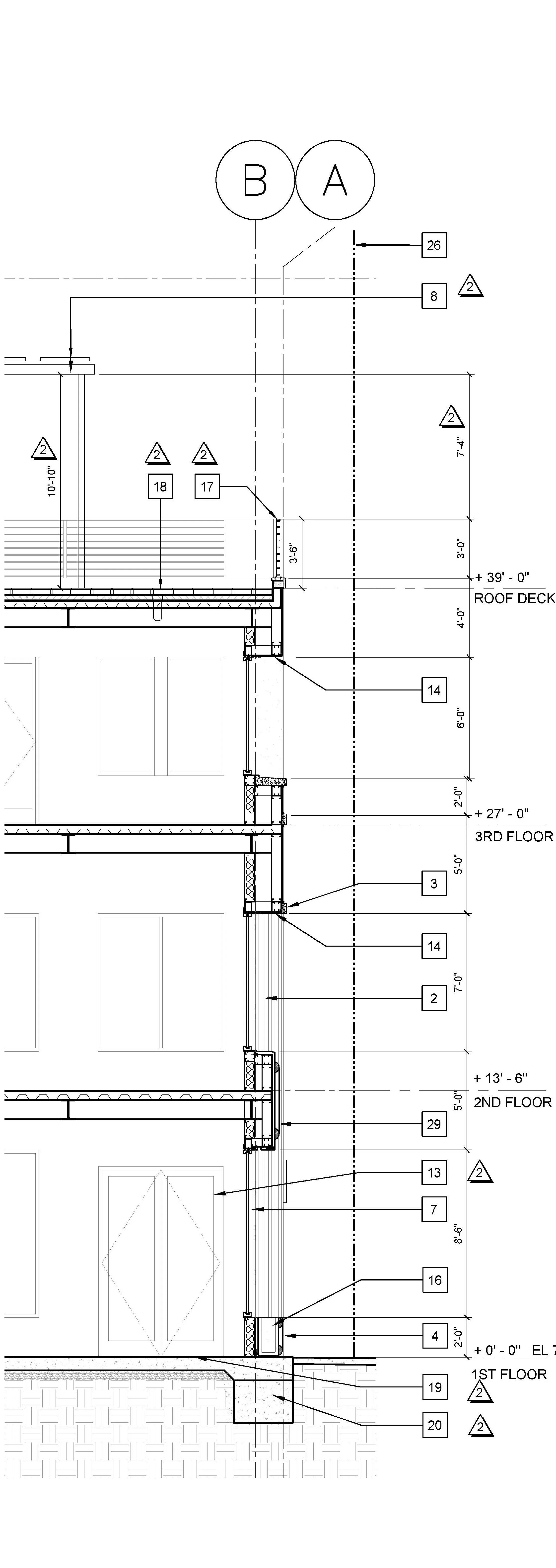
  • Material Palette: The exterior utilizes a sophisticated mix of grooved glazed terracotta panels (Color: Cream), smooth cement plaster (Color: Egyptian Sand), and dark bronze aluminum finishes to create a modern yet warm aesthetic.

  • Human-Scale Detail: Ground-floor storefronts feature expansive glazing and custom GFRC base trim to enhance the interface between the retail interior and the Dana Street sidewalk.

Previous
Previous

Whole Foods Los Gatos

Next
Next

2695 The Alameda