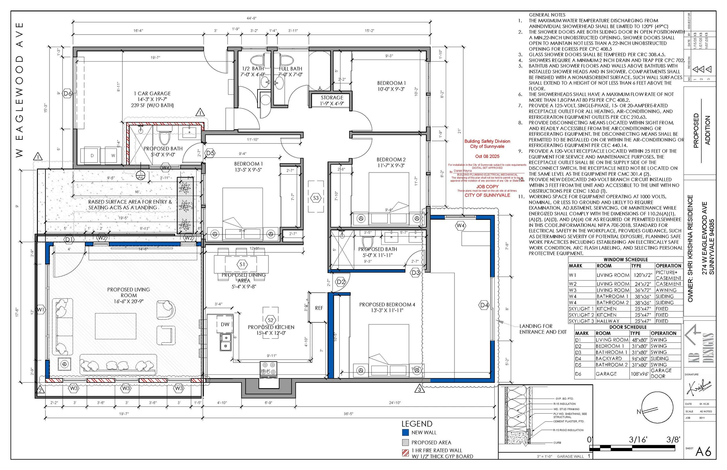
Sunnyvale Residence,
Sunnyvale
Phases:
Design, Planning, building permit
Interior design, Furniture procurement & selection
Landscaping
Sunnyvale
Phases:
Design, Planning, building permit
Interior design, Furniture procurement & selection
Landscaping