969 Hope St

Downtown Mountain View, CA

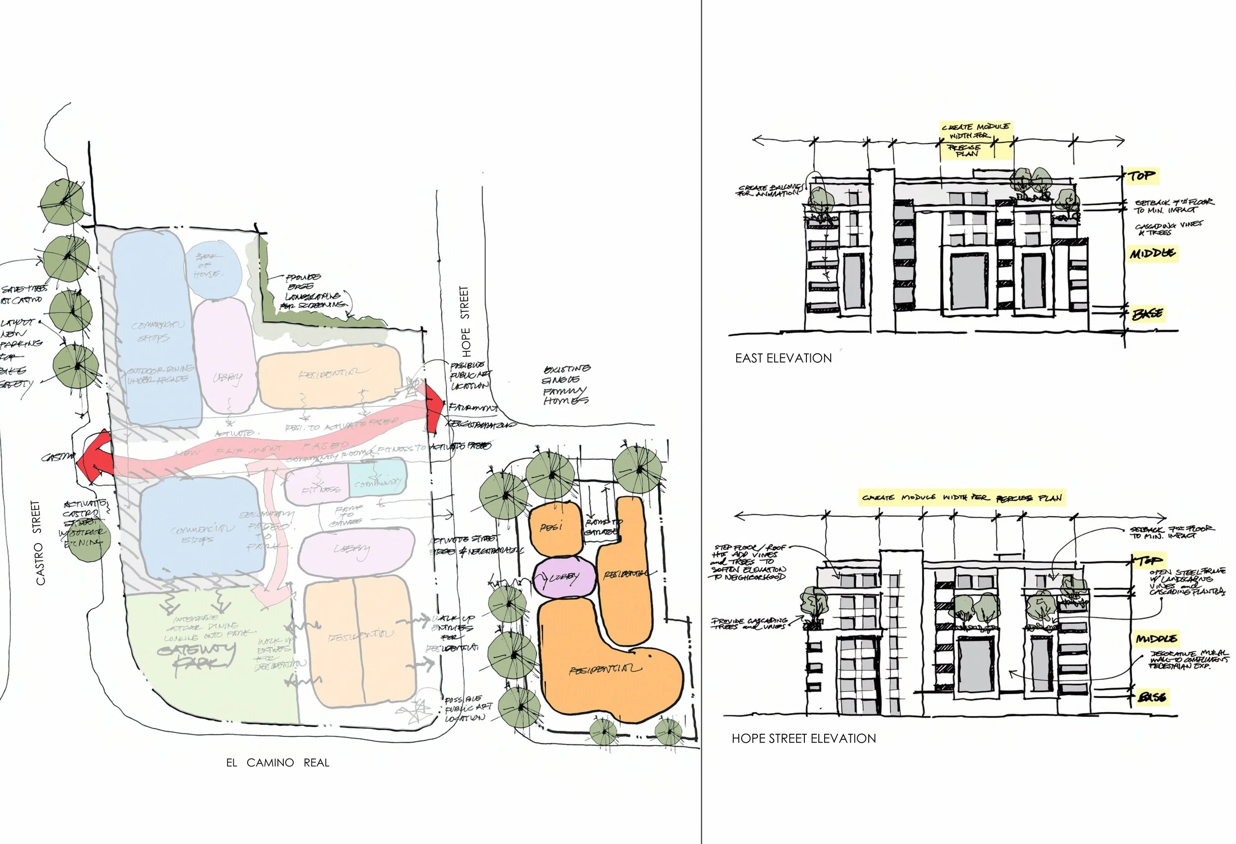
Castro Commons is a community-oriented residential development proposed at the intersection of Hope Street and El Camino Real in downtown Mountain View. The project explores strategies for urban infill housing that strengthen pedestrian connectivity while reinforcing the relationship between Gateway Park and the Castro Street commercial corridor. The design introduces a central pedestrian paseo by converting Fairmont Avenue into a shared street prioritizing pedestrians and cyclists. This intervention establishes a spatial and social linkage between the lower-density residential fabric to the east and the vibrant urban character of downtown to the west. Architectural articulation—including porches, balconies, terraces, and canopies—establishes a human-scaled streetscape while activating the ground plane through outdoor seating, landscaped walkways, and transparent commercial edges. The 0.53-acre site accommodates a five-story Type IV-B wood-frame residential structure above Type IA concrete construction with underground parking, providing 36 units, including 7 below-market-rate homes, contributing to housing diversity in downtown Mountain View.

Previous
Previous

Football Stadium

Next
Next

22 Washington St