Los Gatos Mixed Use

Downtown Los Gatos, California

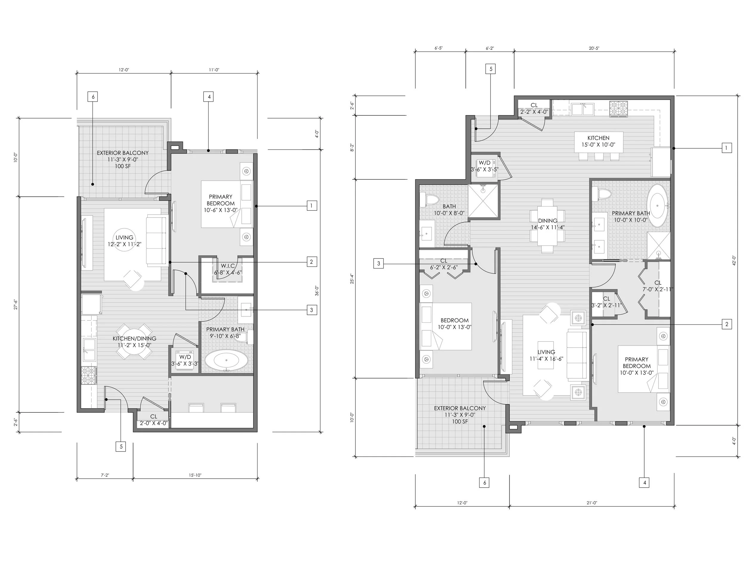
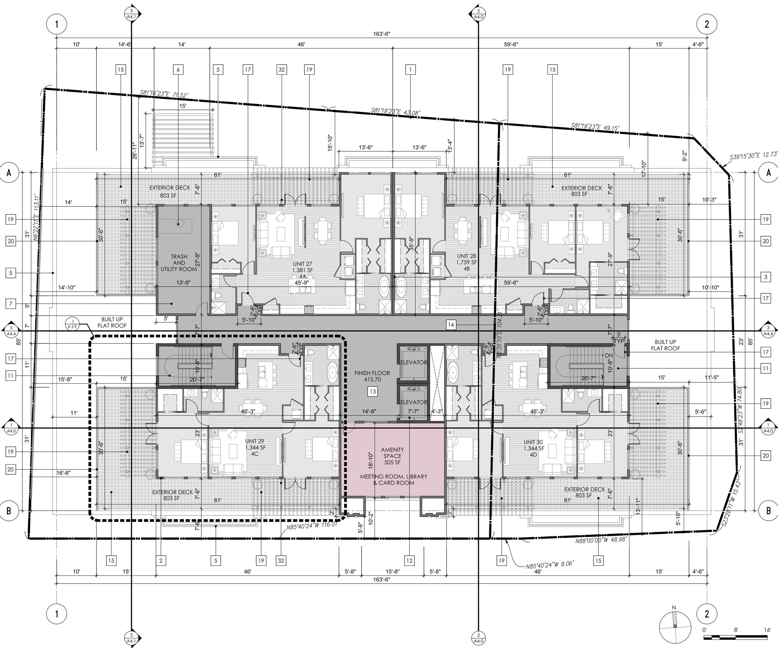
151 east main street is a 4-story mixed use building with underground parking located on 0.425 acre site at the corner of main street and high school court in Los Gatos, California. The ground level includes 2,416 square feet of pedestrian oriented commercial which could be leased to a retail or restaurant tenant. Residential (for sale ) units are located on all four levels of the project. The proposed project includes 30 units, 24 market rate units and 6 affordable units.

For CSPN LLC

Key Design Features

  • The building design is inspired by nearby architecture such as Los Gatos High School and the brick buildings found along North Santa Cruz Avenue in downtown Los Gatos.

  • Exterior materials include brick walls, precast concrete details, iron balconies, metal grid windows, and canvas awnings, similar to materials used in other downtown buildings.

  • The fourth floor is stepped back to reduce the building’s overall height and make it appear less massive from the street.

  • The top floor uses plaster walls, concrete detailing, and a sloped clay tile roof, with outdoor patios, wood trellises, and landscaping that provide views of the foothills and surrounding area.

Previous
Previous

881 Castro St

Next
Next

SageSure Tenant Improvement