400 Saratoga Ave

Santa Clara, California

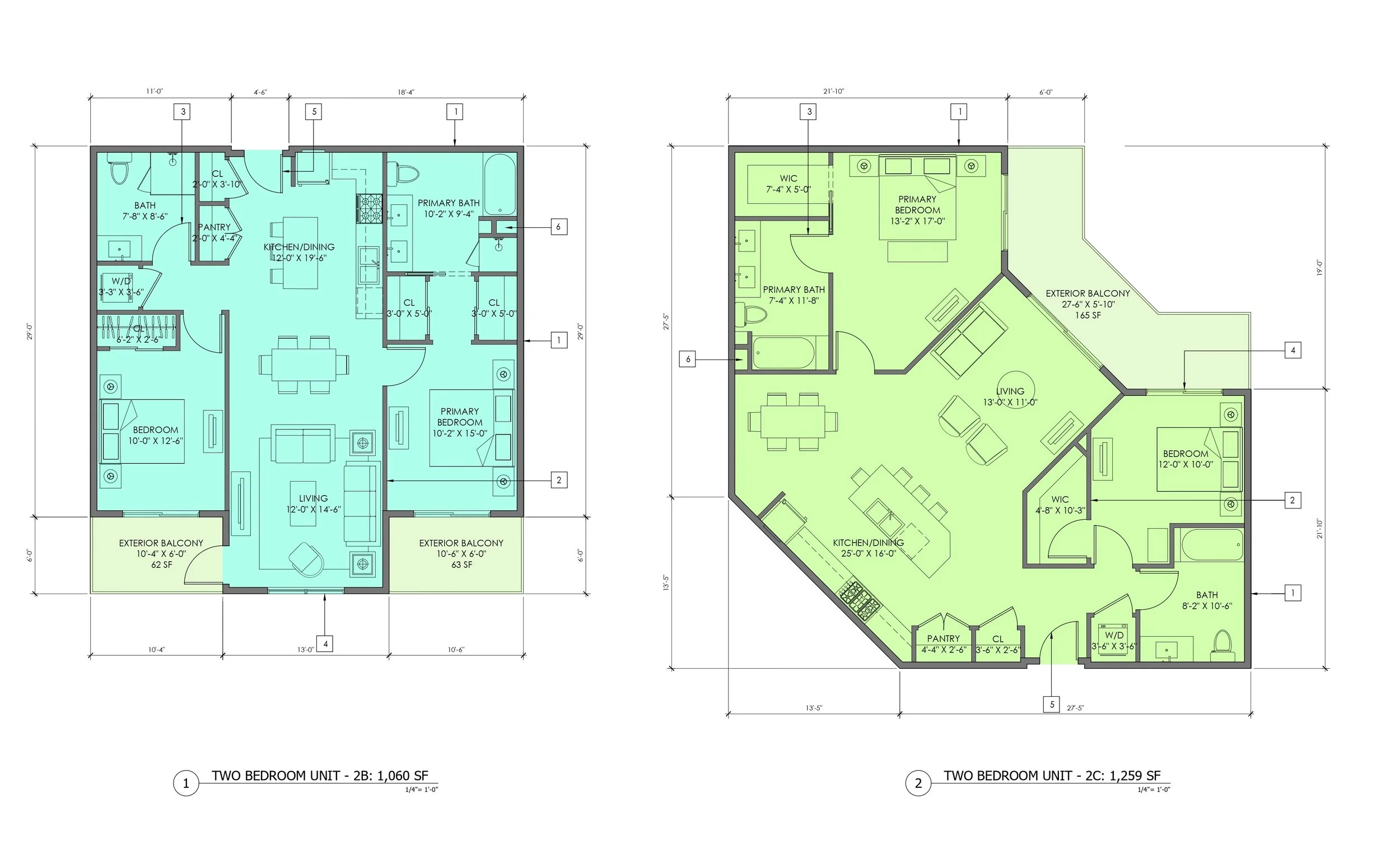
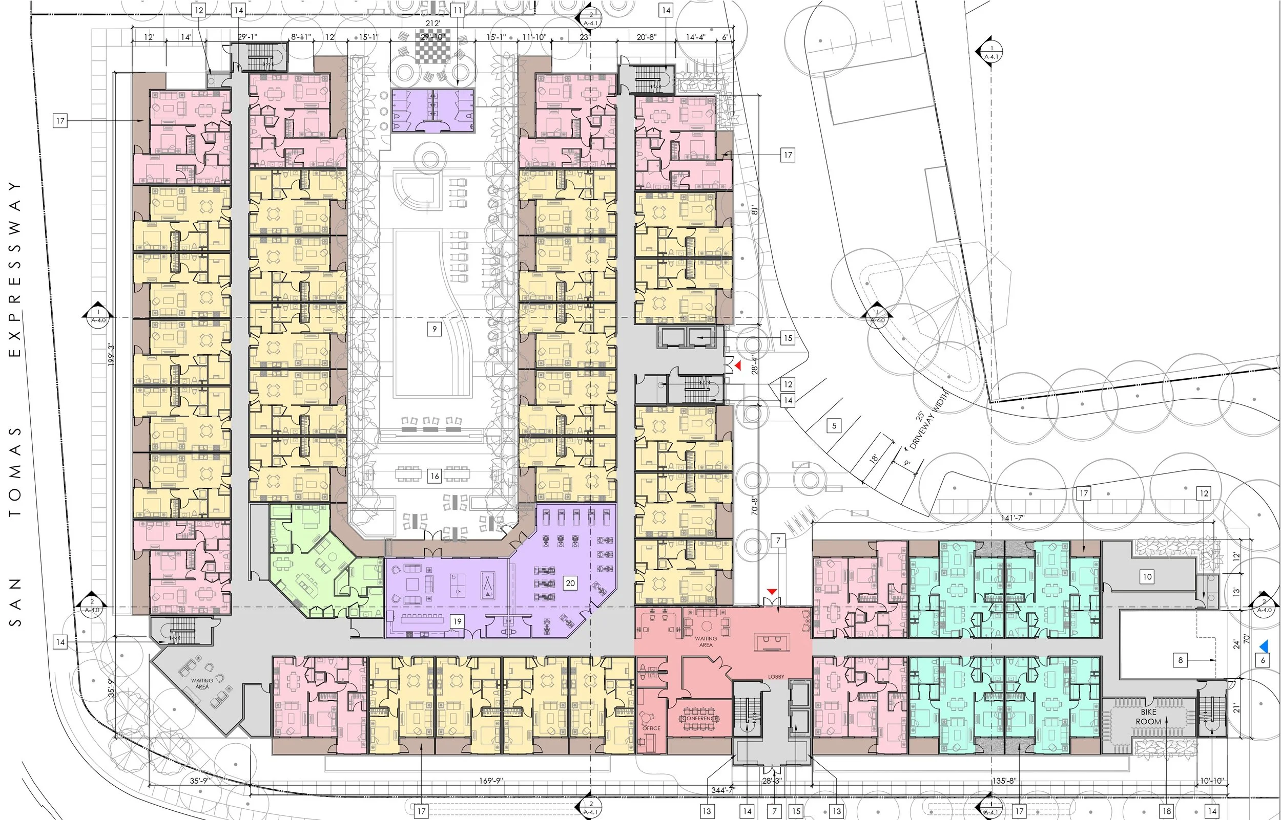
A residential redevelopment is proposed on a portion of the Pruneridge Golf Club property in Santa Clara, located at the intersection of Saratoga Avenue, Pruneridge Avenue, and San Tomas Expressway. The project proposes two multi-family residential buildings totaling 324 units. The residential buildings will feature central courtyard open space for residents. The existing 9-hole executive golf course will remain, with holes 1–3 reconfigured, while the driving range, clubhouse, and existing parking lot will remain unchanged.

For Demmon Partners

Key Design Features

  • Large-Scale Residential Integration: The project introduces 324 multi-family units across two primary buildings, ranging from 3 to 5 stories, strategically located at the intersection of Saratoga Avenue, Pruneridge Avenue, and San Tomas Expressway.

  • Mediterranean-Inspired Aesthetic: The design features a cohesive "organic modern" look with red-tiled roofs, arched entryways, and warm-toned facades complemented by high-end textures like sand beige stone and 3D light sand finishes.

  • Extensive Outdoor Amenities: Residents have access to private, lushly landscaped central courtyards featuring swimming pools, palm trees, and rooftop social terraces equipped with pergolas and string lighting for a resort-style living experience.

  • Golf Course Preservation & Reconfiguration: The existing 9-hole executive golf course remains a core feature of the site, with holes 1–3 reconfigured to wrap around the new housing while the driving range and clubhouse are preserved.

  • Comprehensive Infrastructure & Greenery: The plan includes 392 underground parking spaces and a 23,000 sq ft new park, all integrated with mature canopy trees, flowering bougainvillea, and a native plant pond to enhance the local ecosystem.

Previous
Previous

SageSure Tenant Improvement

Next
Next

Football Stadium